
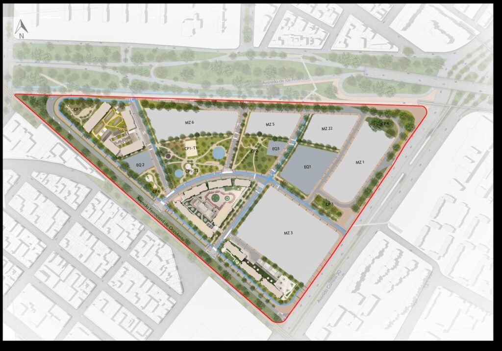
El alcalde Carlos Fernando Galán dio inicio a las obras del Plan Parcial de Renovación Urbana Triángulo de Bavaria, un proyecto que transformará el occidente de la ciudad con una inversión superior a los 28 mil millones de pesos. El plan contempla la creación de más de 69.000 metros cuadrados de espacio público, amplias zonas verdes y más de 3.000 viviendas de interés social y prioritario, en un modelo de desarrollo sostenible que une al sector público y privado.
Galán destacó que esta intervención “es un ejemplo de cómo el Estado puede conectar aspiraciones ciudadanas: calidad de vida, vivienda digna y desarrollo urbano responsable”. La primera etapa de las obras durará 18 meses e incluirá la recuperación de la avenida del Ferrocarril y zonas de encuentro ciudadano, además de la integración con el Regiotram de Occidente, TransMilenio y las obras de la calle 13.
El proyecto, que involucra a entidades como el IDU, la Secretaría de Planeación y Compensar, busca revitalizar una zona que por años estuvo abandonada, convirtiéndola en un nuevo referente urbano. En total, se generarán más de 1.200 empleos y se espera que las obras finalicen en mayo de 2027, consolidando una Bogotá más sostenible, equitativa y con mejor espacio público.




